外滩一英里 先锋艺文住区

参考单价约15万元/㎡起

在售产品高层

在售面积120-240㎡

总层24/32F

交付标准精装

层高约3.15米

样板间已开放

得房率约75%

物业华润物业

楼间距约40米

梯户比一梯两户

绿化率35%

物业费暂定

产权70年

售楼专线:

ALBUM

楼盘相册

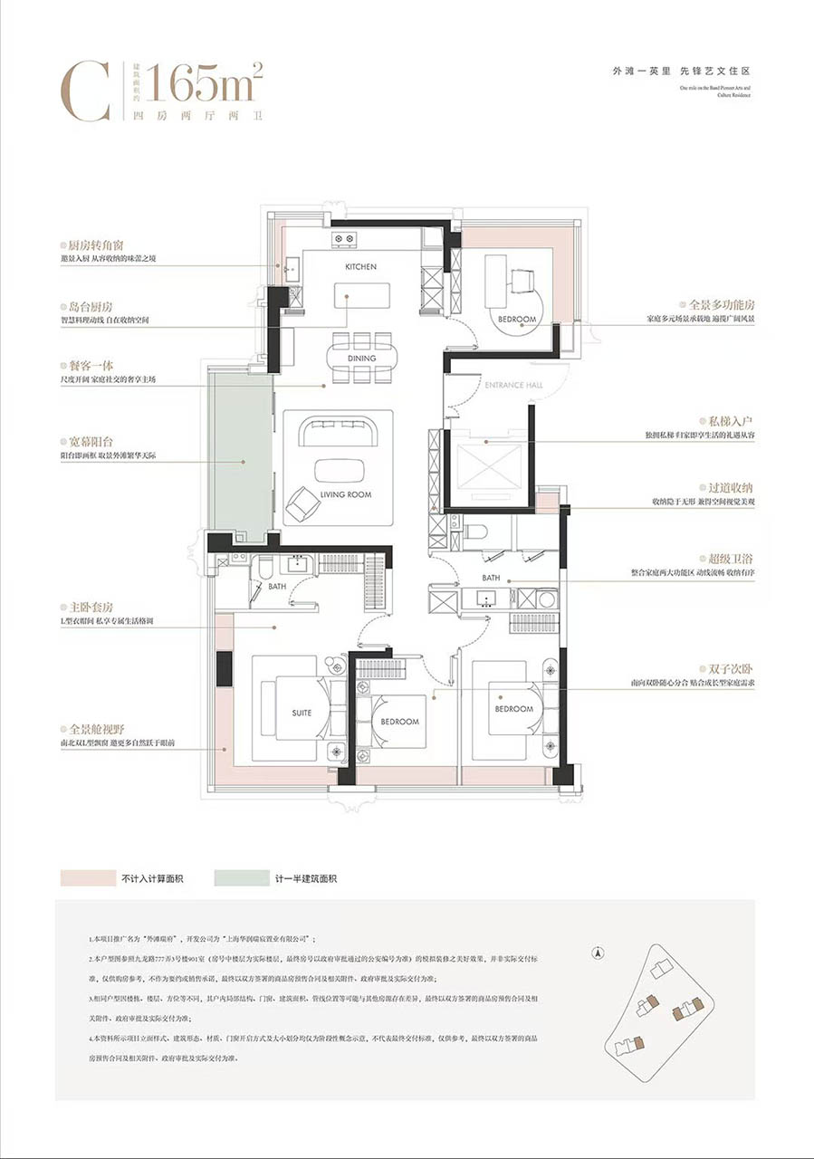
house layout

户型鉴赏

model ALBUM

样板房

售楼专线:

ADVANTAGES

华润外滩瑞府配套优势

    价值锚点 瑞系选址哲学

    占位“世界级黄金三角”,链接全上海的高净值人群,辐射到整个上海的财富圈层,这种广泛且高端的客群基础,赋予了外滩瑞府更加强劲的未来潜力,也让其在市场中更具竞争力。

    品牌奢居 更新沪上版本

    作为华润置地上海“瑞系”顶序,其配置自然是顶豪级别的,每一处细节都透着对极致品质的追求。从建筑形体到社交公区再到室内生活场景都是由不同大师团队联手打造,带来惊艳品质。

    时间积淀 成就区域韵味

    外滩瑞府占据的地区文化底蕴深厚,历史遗迹众多,为居民提供了丰富的文化体验和精神享受,让生活不仅仅是物质的满足,更是精神的富足;教育、医疗、休闲等生活资源更是不缺乏。

    无需妥协 深谙豪宅之道

    户型深谙豪宅之道:通过面宽、采光、视野的均等分配,让家庭里的每一个人,都能在空间里找到被尊重的舒适,“大” 与 “平权” 这两个核心诉求,在此得到了淋漓尽致的诠释。

    动静相宜 灵动私密交织

    建筑楼体的偏转,形成了围合式的景观布局,名贵树木与大师造景环绕,不仅打造出了连续的中心花园,更因楼栋布局与边界形成夹角,自然衍生出一系列边角院落空间,造就多姿美景。

    央企底气 城市的践行者

    华润置地作为500强企业,深度参与上海城市发展,外滩既是上海“全球城市”的封面,更是全球资源的交汇枢纽,此次落子瑞系产品,本质是对的深刻洞察:非核心不选,非未来不立。

WHY DID YOU CHOOSE US?

『关于华润外滩瑞府』

6
奢侈系统 一步到位
引入六维生命系统,关注空气、水、声、光、厨房健康和智能,每一项都贴合现代居家痛点,解决生活烦恼。
1,800
稀贵坐标 天赋尊荣
与陆家嘴隔江相望,百年荣光与30年骄人成就互为镜像,视野冲击堪称一绝,形成当下与未来的时空对话。
2,600
塔尖生活 典雅之选
自带约2600㎡双首层会所,配备恒温泳池、私宴厅、酒窖等设施,定制“文明之海、时间之轮”主题艺术品。

央企品质筑就传世臻品 先时代一步而来

INVITATION VISITED US

邀您品鉴

售楼中心
上海市虹口区四平路和吴淞路交叉口
售楼专线
(服务时间:上午8点 - 晚上9点)
声明
本项目信息的获取请以本站为准,其它信息渠道均与我司无关,特此声明,请谨慎辨别,以免造成不必要的损失。
提交购房意向

网站提交购房意向,保留专享优惠名额

NEWS

新闻中心

标题加载中...
新闻加载中...

Copyright © 华润外滩瑞府 2016 - 2026 | All rights reserved

开发商:上海华润瑞宸置业有限公司
虹口房管(2025)预字0000067号 以上面积均为建筑面积
本宣传资料相关图文资料仅作宣传示意,不作为开发商的任何许诺
本宣传资料仅为要约邀请,不作为合同及交房标准依据,买卖双方的权利义务以双方签订的《商品房买卖合同》及其补充协议、附件等书面文件为准
本资料制作(或更新)于2026年03月底 ,具体内容仅供参考,相关内容不排除因政府规、规定及出卖人分期规划、未能控制等原因发生变化
我们将不定期对宣传材料进行修改,敬请留意最新资料
本资料如无意中侵犯了媒体、个人、企业或者其他组织的知识产权,请及时告知,我们将立即予以修改或删除。
Copyright©2017 - 2026.All Rights Reserved.
邀请通话 ×

输入手机号接通置业顾问,我们将提供全程免费和专业的解答

根据《中华人民共和国个人信息保护法》条例相关规定,您的个人信息将被加密
扫码加微信 给我回电
在线客服
给我回电
客服微信
置顶
友情提示 X

信息提交进行中...